Kiadó Lakás
Hirdetéskód: 9002266
GDN Ingatlanhálózat - Märcz Kft
44.00 m2
ALAPTERÜLET1
SZOBASZÁMnincs megadva
ÉPÍTÉSHázközponti fűtés egyedi méréssel
FŰTÉS- CSOK igénybe vehető nem
- Tetőtér beépíthető nem
- Fűtés Házközponti fűtés egyedi méréssel
- Klíma nem
- Szigetelt nem
A+++
A++
A+
A
B
C
D
E
F
G
H
I
Az ingatlan leírása
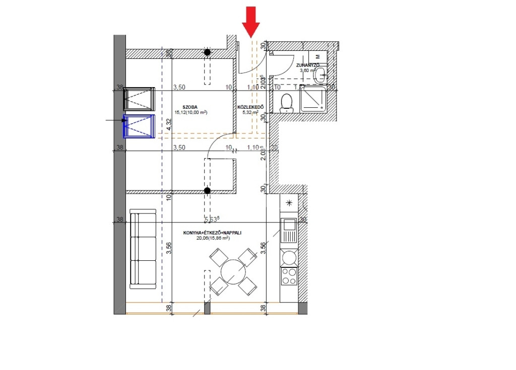
BL-003856. Vezér utcák közelében, 1. emeleti /részben tetőtéri/, 44 m²-es, amerikai konyhás nappali + 1 szoba elosztású, MIDEA klímával szerelt, tégla, teljes körűen felújított, egyedi hőmennyiségmérős (házközponti rendszer + radiátoros hőleadás) fűtéssel szerelt, részben gépesített, bútor nélküli lakás hosszútávra kiadó.
!!! A bérleti díj tartalmazza a közös költséget és a fűtés díját és a zárt udvari beállót. Ezen felül csak víz, áram valamint opcionálisan TV + Internet szolgáltatást kell fizetni !!!
A melegvíz előállítása Ariston Smart 100 literes villanybojlerrel, történik. A lakásban, 1 db kistestű háziállat tartása lehetséges, de a dohányzás nem megengedett. A lakásban új konyhabútor található hűtővel és villanytűzhellyel, mikrohullámú sütő és mosógép nincsen. A lakás kialakításából és jellegéből fakadóan 1-2 ember számára biztosít kényelmes lakhatást.
A lakáscélú hasznosításon túlmenően az ingatlan alkalmas akár irodai tevékenység céljából való bérlésre is.
A kommunális hulladék elszállítására az ingatlan bérlőjének kell szerződni a szolgáltatóval.
A lakás bérleti díja: 190.000 Ft / hó + (víz és villany)
A beköltözéshez 2 havi kaució, első havi teljes vagy időarányos bérleti díj, közjegyzői nyilatkozat, valamint közvetítői díj megfizetése szükséges.
Ha felkeltette érdeklődését, hívja irodánkat bizalommal, éljen ingyenes, személyre szabott hitelügyintézés szolgáltatásunkkal. Segítünk továbbá adásvételhez szükséges ügyvédi közreműködésben, energetikai tanúsítvány, valamint értékbecslés elkészítésében.
For English details please send us a message or an e-mail, thank you. ...TOVÁBBI, TÖBBEZRES INGATLAN KÍNÁLAT: - GDN azonosító: 378656
!!! A bérleti díj tartalmazza a közös költséget és a fűtés díját és a zárt udvari beállót. Ezen felül csak víz, áram valamint opcionálisan TV + Internet szolgáltatást kell fizetni !!!
A melegvíz előállítása Ariston Smart 100 literes villanybojlerrel, történik. A lakásban, 1 db kistestű háziállat tartása lehetséges, de a dohányzás nem megengedett. A lakásban új konyhabútor található hűtővel és villanytűzhellyel, mikrohullámú sütő és mosógép nincsen. A lakás kialakításából és jellegéből fakadóan 1-2 ember számára biztosít kényelmes lakhatást.
A lakáscélú hasznosításon túlmenően az ingatlan alkalmas akár irodai tevékenység céljából való bérlésre is.
A kommunális hulladék elszállítására az ingatlan bérlőjének kell szerződni a szolgáltatóval.
A lakás bérleti díja: 190.000 Ft / hó + (víz és villany)
A beköltözéshez 2 havi kaució, első havi teljes vagy időarányos bérleti díj, közjegyzői nyilatkozat, valamint közvetítői díj megfizetése szükséges.
Ha felkeltette érdeklődését, hívja irodánkat bizalommal, éljen ingyenes, személyre szabott hitelügyintézés szolgáltatásunkkal. Segítünk továbbá adásvételhez szükséges ügyvédi közreműködésben, energetikai tanúsítvány, valamint értékbecslés elkészítésében.
For English details please send us a message or an e-mail, thank you. ...TOVÁBBI, TÖBBEZRES INGATLAN KÍNÁLAT: - GDN azonosító: 378656