Kiadó Kereskedelmi és ipari ingatlan
Hirdetéskód: 9009912
GDN Ingatlanhálózat - Märcz Kft
88.00 m2
ALAPTERÜLET2
SZOBASZÁMnincs megadva
ÉPÍTÉSGáz (cirkó)
FŰTÉS- CSOK igénybe vehető nem
- Tetőtér beépíthető nem
- Fűtés Gáz (cirkó)
- Klíma nem
- Szigetelt nem
A+++
A++
A+
A
B
C
D
E
F
G
H
I
Az ingatlan leírása
Bip-004346 Kiadó üzleti ingatlan Székesfehérvár történelmi belvárosában!
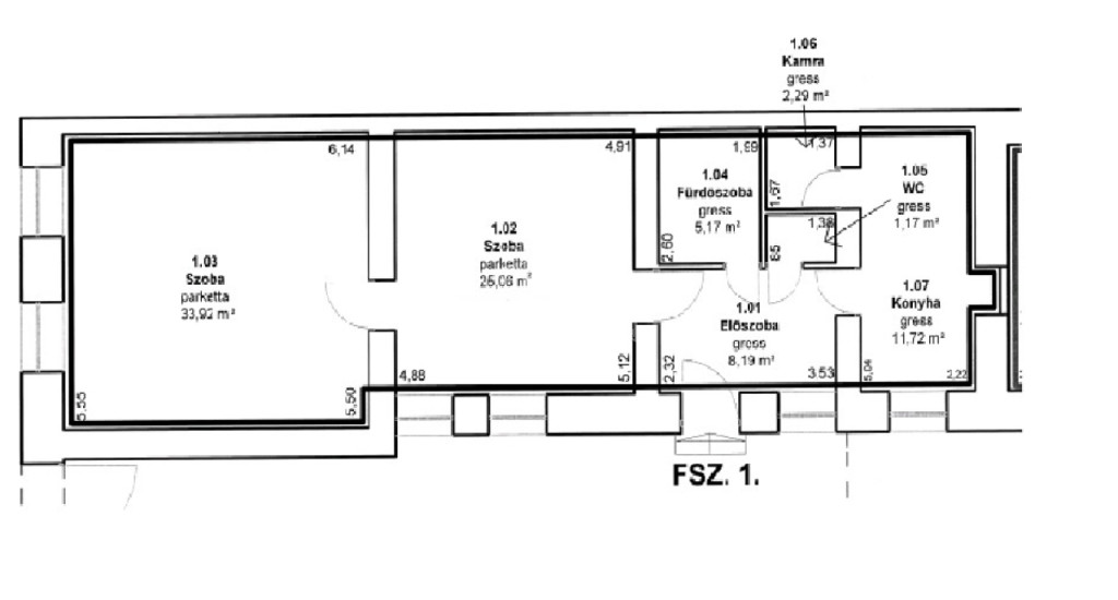
Székesfehérvár frekventált, történelmi belvárosi részén, az autóbusz-állomás közelében földszinti, 88 nm-es, klimatizált üzleti ingatlan kiadó.
Főbb jellemzők:
• Elhelyezkedés: Földszinten, könnyen megközelíthető
• Méret: 88 nm, két helyiség
• Fűtés: Gázkazán radiátoros hőleadással
• Burkolat: Járólap és laminált padló
• Konyha: Új konyhabútor
• Klimatizált
• Jelenlegi funkció: Orvosi rendelő, amely 5 éves ÁNTSZ engedéllyel rendelkezik
Az ingatlan jelenleg is orvosi rendelőként működik, és amennyiben a következő bérlő szintén az egészségügyi szektorban tevékenykedik, lehetőség van a meglévő berendezés és páciensek átvételére.
További lehetőségként alkalmas lehet szépségipari tevékenységre vagy alacsony ügyfélforgalmat bonyolító szolgáltatónak, esetleg irodának is.
A bérleti díj tartalmazza a zárt udvari autóbeállót.
Az ingatlan 2025.03.31-től vehető birtokba.
További információért és megtekintésért keressen bizalommal!
Bérleti díj: 185.000 Ft + rezsi
A beköltözéshez, 2 havi kaució, első havi bérleti díj, valamint közvetítői díj megfizetése szükséges.
Ha felkeltette érdeklődését, hívja irodánkat bizalommal, éljen ingyenes, személyre szabott hitelügyintézés szolgáltatásunkkal. Segítünk továbbá adásvételhez szükséges ügyvédi közreműködésben, energetikai tanúsítvány, valamint értékbecslés elkészítésében.
For English details please send us a message or an e-mail, thank you. ...TOVÁBBI, TÖBBEZRES INGATLAN KÍNÁLAT: - GDN azonosító: 378911
Székesfehérvár frekventált, történelmi belvárosi részén, az autóbusz-állomás közelében földszinti, 88 nm-es, klimatizált üzleti ingatlan kiadó.
Főbb jellemzők:
• Elhelyezkedés: Földszinten, könnyen megközelíthető
• Méret: 88 nm, két helyiség
• Fűtés: Gázkazán radiátoros hőleadással
• Burkolat: Járólap és laminált padló
• Konyha: Új konyhabútor
• Klimatizált
• Jelenlegi funkció: Orvosi rendelő, amely 5 éves ÁNTSZ engedéllyel rendelkezik
Az ingatlan jelenleg is orvosi rendelőként működik, és amennyiben a következő bérlő szintén az egészségügyi szektorban tevékenykedik, lehetőség van a meglévő berendezés és páciensek átvételére.
További lehetőségként alkalmas lehet szépségipari tevékenységre vagy alacsony ügyfélforgalmat bonyolító szolgáltatónak, esetleg irodának is.
A bérleti díj tartalmazza a zárt udvari autóbeállót.
Az ingatlan 2025.03.31-től vehető birtokba.
További információért és megtekintésért keressen bizalommal!
Bérleti díj: 185.000 Ft + rezsi
A beköltözéshez, 2 havi kaució, első havi bérleti díj, valamint közvetítői díj megfizetése szükséges.
Ha felkeltette érdeklődését, hívja irodánkat bizalommal, éljen ingyenes, személyre szabott hitelügyintézés szolgáltatásunkkal. Segítünk továbbá adásvételhez szükséges ügyvédi közreműködésben, energetikai tanúsítvány, valamint értékbecslés elkészítésében.
For English details please send us a message or an e-mail, thank you. ...TOVÁBBI, TÖBBEZRES INGATLAN KÍNÁLAT: - GDN azonosító: 378911