Eladó Lakás
Hirdetéskód: 9010993
Győr Bajcsy-Zsilinszky út 27 - OTP Ingatlanpont Iroda
Ez a hirdetés megfelelhet a FIX 3%-os programnak.
Tudj meg többet a részletekről itt.
71.00 m2
ALAPTERÜLET1
SZOBASZÁMnincs megadva
ÉPÍTÉSnincs megadva
FŰTÉS- CSOK igénybe vehető nem
- Tetőtér beépíthető nem
- Építés éve 1972
- Klíma nem
- Szigetelt nem
A+++
A++
A+
A
B
C
D
E
F
G
H
I
Az ingatlan leírása
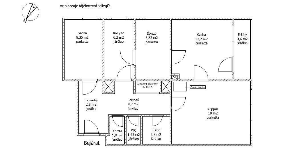
Csorna központjában eladásra kínálok egy 1972-ben téglából épült, délnyugati tájolású 71 nm-es, 3. emeleti 2+1 félszoba, konyha, étkezős társasházi lakást. A lakáshoz két közös és egy saját használatú tároló is tartozik.
A lakás fűtése egyedi turbó gázkazánnal, illetve alternatívaként cserépkályhával megoldott.
Minden egyedi mérők alapján kerül elszámolásra.
A megtakarításból a lakók a társasházat folyamatosan újítgatják.
Befektetésnek is tökéletes lokációja miatt.
Amennyiben hirdetésem felkeltette érdeklődését, kérem keressen bizalommal!
Referenciaszám: M296027
A lakás fűtése egyedi turbó gázkazánnal, illetve alternatívaként cserépkályhával megoldott.
Minden egyedi mérők alapján kerül elszámolásra.
A megtakarításból a lakók a társasházat folyamatosan újítgatják.
Befektetésnek is tökéletes lokációja miatt.
Amennyiben hirdetésem felkeltette érdeklődését, kérem keressen bizalommal!
Referenciaszám: M296027