Eladó Ház- házrész
Hirdetéskód: 9010938
Pécs Rákóczi út 19 - OTP Ingatlanpont Iroda
1230 m2
ALAPTERÜLET4
SZOBASZÁMnincs megadva
ÉPÍTÉSnincs megadva
FŰTÉS- CSOK igénybe vehető nem
- Tetőtér beépíthető nem
- Építés éve 2015
- Klíma nem
- Szigetelt nem
A+++
A++
A+
A
B
C
D
E
F
G
H
I
Az ingatlan leírása
Pécs frekventált városrészén, Bálicsban eladó, egy minden igényt kielégítő, magas minőségben kivitelezett, 2015-ben épült, 1230 m2-es telken lévő 174 m2-es családi ház.
Ha egy igazi gyöngyszemre vágyik, szereti a jól átgondolt tereket és örömét lelné egy csodás parkosított kertben, akkor ezt az ingatlan Önre vár !
A D/Ny-i tájolású ingatlan egyedülálló örökpanorámával , gyönyörű örökzöldekkel rendelkezik .
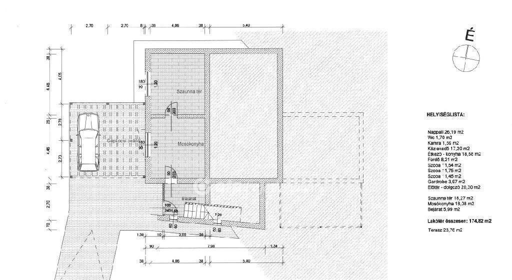
Az ingatlan a terep lejtése miatt, két szinten helyezkedik el. A lakószint a földszintről lépcsőkön keresztül közelíthető meg.
A földszinten található a konditerem, mosókonyha, zuhany, vízlágyító és a gépészet. Az ingatlan takarítását a központi porszívó beépítése nagyban megkönnyíti. A ház melegéről hőszivattyú és gázkazán gondoskodnak. Hőleadás radiátorokon és padlófűtésen keresztül történik, illetve egy klíma is beépítésre került. A ház áram-ellátását a 4,2 kW-os napelem rendszer táplálja és a 3 x 20 A lehetővé teszi az elektromos autótöltést is.
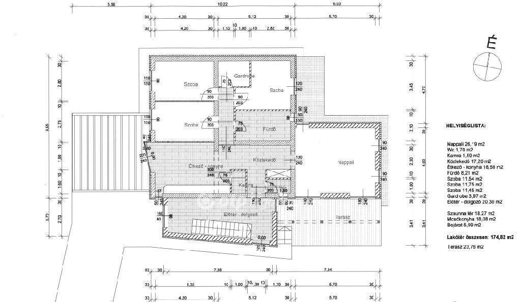
A lakószint elrendezése nagyon jól átgondolt! A tágas , világos nagy ablakokkal rendelkező, motoros zsalúziával ellátott nappaliból a félig fedett teraszra érünk, illetve a gyönyörűen parkosított kertbe.
A nappali jól elkülönül a 3 db kényelmes szobától, így nem zavarva a pihenni vágyókat. A minőségi konyhabútor látványa és a panorámás ebédlő kellemes hangulatot biztosít a családi ebédekhez.
Az ingatlant a világos , tágas terek, világos modern burkolatok jellemzik. A szobákban motoros alumínium redőny került beépítésre, ezzel teljes sötétséget biztosítva a pihentető alváshoz.
2 db fedett parkoló került kialakításra az ingatlan előtt , de akár 5 autó elhelyezhető.
A kert rendkívül szépen karbantartott, ahogyan az egész ház. A kertben fedett nyári konyha, grillezési lehetőséggel, családi összejövetelek kellemes helyszíne.
Ha felkeltette érdeklődését ez a csodálatos ingatlan, keressen bizalommal!
M293690
Ha egy igazi gyöngyszemre vágyik, szereti a jól átgondolt tereket és örömét lelné egy csodás parkosított kertben, akkor ezt az ingatlan Önre vár !
A D/Ny-i tájolású ingatlan egyedülálló örökpanorámával , gyönyörű örökzöldekkel rendelkezik .
Az ingatlan a terep lejtése miatt, két szinten helyezkedik el. A lakószint a földszintről lépcsőkön keresztül közelíthető meg.
A földszinten található a konditerem, mosókonyha, zuhany, vízlágyító és a gépészet. Az ingatlan takarítását a központi porszívó beépítése nagyban megkönnyíti. A ház melegéről hőszivattyú és gázkazán gondoskodnak. Hőleadás radiátorokon és padlófűtésen keresztül történik, illetve egy klíma is beépítésre került. A ház áram-ellátását a 4,2 kW-os napelem rendszer táplálja és a 3 x 20 A lehetővé teszi az elektromos autótöltést is.
A lakószint elrendezése nagyon jól átgondolt! A tágas , világos nagy ablakokkal rendelkező, motoros zsalúziával ellátott nappaliból a félig fedett teraszra érünk, illetve a gyönyörűen parkosított kertbe.
A nappali jól elkülönül a 3 db kényelmes szobától, így nem zavarva a pihenni vágyókat. A minőségi konyhabútor látványa és a panorámás ebédlő kellemes hangulatot biztosít a családi ebédekhez.
Az ingatlant a világos , tágas terek, világos modern burkolatok jellemzik. A szobákban motoros alumínium redőny került beépítésre, ezzel teljes sötétséget biztosítva a pihentető alváshoz.
2 db fedett parkoló került kialakításra az ingatlan előtt , de akár 5 autó elhelyezhető.
A kert rendkívül szépen karbantartott, ahogyan az egész ház. A kertben fedett nyári konyha, grillezési lehetőséggel, családi összejövetelek kellemes helyszíne.
Ha felkeltette érdeklődését ez a csodálatos ingatlan, keressen bizalommal!
M293690