Eladó Ház- házrész
Hirdetéskód: 9010995
Győr Bajcsy-Zsilinszky út 27 - OTP Ingatlanpont Iroda
Ez a hirdetés megfelelhet a FIX 3%-os programnak.
Tudj meg többet a részletekről itt.
2983 m2
ALAPTERÜLET2
SZOBASZÁMnincs megadva
ÉPÍTÉSnincs megadva
FŰTÉS- CSOK igénybe vehető nem
- Tetőtér beépíthető nem
- Építés éve 1960
- Klíma nem
- Szigetelt nem
A+++
A++
A+
A
B
C
D
E
F
G
H
I
Az ingatlan leírása
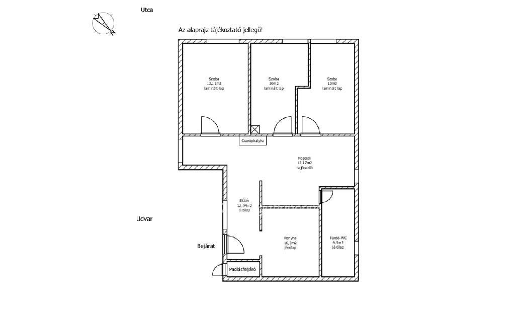
Eladásra kínálok Kajárpécen, 2983 m2-es telken, egy 1960-ban vegyes falazattal készült, 75 m2-es, 3 szoba+nappalis családi házat melléképületekkel. A telek enyhe lejtéséből adódóan panorámás.
A ház korszerűsítése elkezdődött, tetőcsere megtörtént, villanyvezetékeket kicserélték, az aljzatot betonozták, fűtése cserépkályhával és infra panelekkel megoldott.
Kajárpéc Győrtől 26 km-re fekszik, a sokorói dombvidék lábánál. Ideális választás mindazok számára, akik életüket falusias környezetben, távol a város zajától képzelik el.
A településen igénybe vehető a falusi családi otthonteremtési kedvezmény (falusi CSOK).
Az OTP Ingatlanpont teljes körű ügyintézéssel áll az eladók és a vevők rendelkezésére! Az OTP csoport tagjaként, ügyfeleinknek lehetőségük van az OTP Bank által nyújtott kedvező hitel-, kamat- és díjkedvezmények igénybevételére. Az adás-vétel folyamatának megkönnyítése érdekében szakképzett kollégáink, ügyvédeink gyorsított ügyintézéssel állnak szíves rendelkezésükre.
Amennyiben az ingatlan felkeltette az érdeklődését, kérem keressen bizalommal!
A ház korszerűsítése elkezdődött, tetőcsere megtörtént, villanyvezetékeket kicserélték, az aljzatot betonozták, fűtése cserépkályhával és infra panelekkel megoldott.
Kajárpéc Győrtől 26 km-re fekszik, a sokorói dombvidék lábánál. Ideális választás mindazok számára, akik életüket falusias környezetben, távol a város zajától képzelik el.
A településen igénybe vehető a falusi családi otthonteremtési kedvezmény (falusi CSOK).
Az OTP Ingatlanpont teljes körű ügyintézéssel áll az eladók és a vevők rendelkezésére! Az OTP csoport tagjaként, ügyfeleinknek lehetőségük van az OTP Bank által nyújtott kedvező hitel-, kamat- és díjkedvezmények igénybevételére. Az adás-vétel folyamatának megkönnyítése érdekében szakképzett kollégáink, ügyvédeink gyorsított ügyintézéssel állnak szíves rendelkezésükre.
Amennyiben az ingatlan felkeltette az érdeklődését, kérem keressen bizalommal!